乐玩lewin-乐玩国际气动卡箍式卫生级球阀简介:
气动卡箍式卫生级快装球阀是一种专为卫生要求高的行业设计的阀门,适用于食品、饮料、制药和生物工程等领域。其结构紧凑,操作便捷,能有效防止介质污染。
主要特点:
卫生级设计:采用不锈钢材质,表面光滑,易于清洗,符合卫生标准。
快速安装:卡箍式连接,安装和拆卸简便,节省时间。
气动操作:通过气动执行器控制,支持自动化操作,提升效率。
密封性好:采用优质密封材料,确保无泄漏。
耐腐蚀:不锈钢材质耐腐蚀,适用于多种介质。
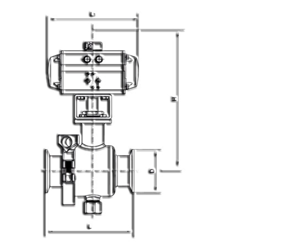
气动卡箍式卫生级球阀结构图:

工作原理:
卫生级气动球阀的启闭件为一个球体。利用球体绕阀杆的轴线旋转,实现开启、关闭的目的。卫生级直通球阀在管道上主要用于切断介质的流通。



客服1